Fenster Kaufen Online

Kunststofffenster nach Mass

In vielen Variationen

Fenster
einflügelig

Fenster
zweiflügelig

Balkontür
einflügelig

Balkontür
zweiflügelig

Fenster
Festverglasung

Fenster online kaufen

Direkt vom Hersteller

Fensterprofil

Mit dem hochmodernen Kunststoff-Profilsystem unserer Fenster optimieren Sie die Energiebilanz eines jeden Gebäudes. Die einzigartige Kombination aus innovativer Mehrkammer-Dämmtechnik in 82 mm Bautiefe und hocheffektivem Mitteldichtungssystem sorgt für eine effiziente Heizkostenersparnis und ein angenehmes Raumklima, zu jeder Jahreszeit.

Fensterbeschlag

Alle Fenster und Balkontüren auf DeinFenster.ch sind mit einem hochwertigen Markenbeschlag ausgestattet. Das Dreh-Kipp-Beschlagsystem erfüllt höchste Anforderungen an Sicherheit, Bedienkomfort, Langlebigkeit und Design. Sämtliche Bauteile aus unserem modular aufgebauten Baukastensystem sind perfekt aufeinander abgestimmt.

Fensterglas

Durch die Kombination von optimaler Edelgasfüllung, unsichtbarer Wärmeschutzbeschichtung und Dreifachverglasung bieten unsere Fenster im Vergleich zu älteren Fenstern ein Einsparpotential von bis zu 75 Prozent. Dank der Dreifach-Isolierverglasung erreichen die Gläser eine Wärmedämmung von bis zu 0,6 W/m²K.

DeinFenster.ch

Weil es praktisch ist

Der Griff

DeinFenster.ch bietet Ihnen Fenstergriffe mit oder ohne Sperrfunktion. Wählen Sie über unseren Konfigurator ganz individuell mit wenigen Klicks die richtige Ausführung für Ihr Bauvorhaben, je nach Einsatzgebiet und Sicherheitsbedarf. Das einheitliche, zeitlose Design in silberner Metalloptik verleiht den Fenstern ein modernes und harmonisches Erscheinungsbild.

Der Einbruchschutz

Wir bieten Ihnen neben der Grundsicherheit die zusätzlichen Sicherheitspakete 1, 2 und 2N für optimalen Einbruchschutz an. Diese beinhalten mehrere Pilzkopfverriegelungen, Stulpgetriebe, abschliessbare Fenstergriffe und durchschlagfestes Verbundsicherheitsglas (VSG). Alle Fenster bei DeinFenster.ch sind mit einem aufgesetzten Markenbeschlag ausgestattet.

Die Qualität

Konstant hohe Qualität und zuverlässige Lieferung – das ist unser Anspruch. Die technischen Eigenschaften wie Wärmedurchgangskoeffizient (U-Wert), Gesamtenergiedurchlassgrad (g-Wert) und Lichttransmissionsgrad (LT-Wert) entsprechen den heutigen Anforderungen. Die Fenster werden auf Luftdurchlässigkeit, Schlagregen-dichtheit und Widerstandsfähigkeit getestet und laufend dem Stand der Technik angepasst. 

Fensterbeschlag

Wählen Sie Ihr Sicherheitspaket

Grundsicherheit
  • Bis zu vier Sicherheitsschliesspunkte aus Stahl
  • Standard-Fenstergriff
  • Standard-Dreifachglas
Sicherheitspaket 1
  • Mindestens vier Sicherheitsschliesspunkte aus Stahl
  • Abschliessbarer Fenstergriff
  • Aufbohrschutz
  • Standard-Dreifachglas
Sicherheitspaket 2N
  • Zusätzliche Sicherheitsschliesspunkte aus Stahl
  • Abschliessbarer Fenstergriff
  • Aufbohrschutz
  • Standard-Dreifachglas
Sicherheitspaket 2
  • Zusätzliche Sicherheitsschliesspunkte aus Stahl
  • Abschliessbarer Fenstergriff
  • Aufbohrschutz
  • Dreifach-Verbundsicherheitsglas (VSG) eingeklebt

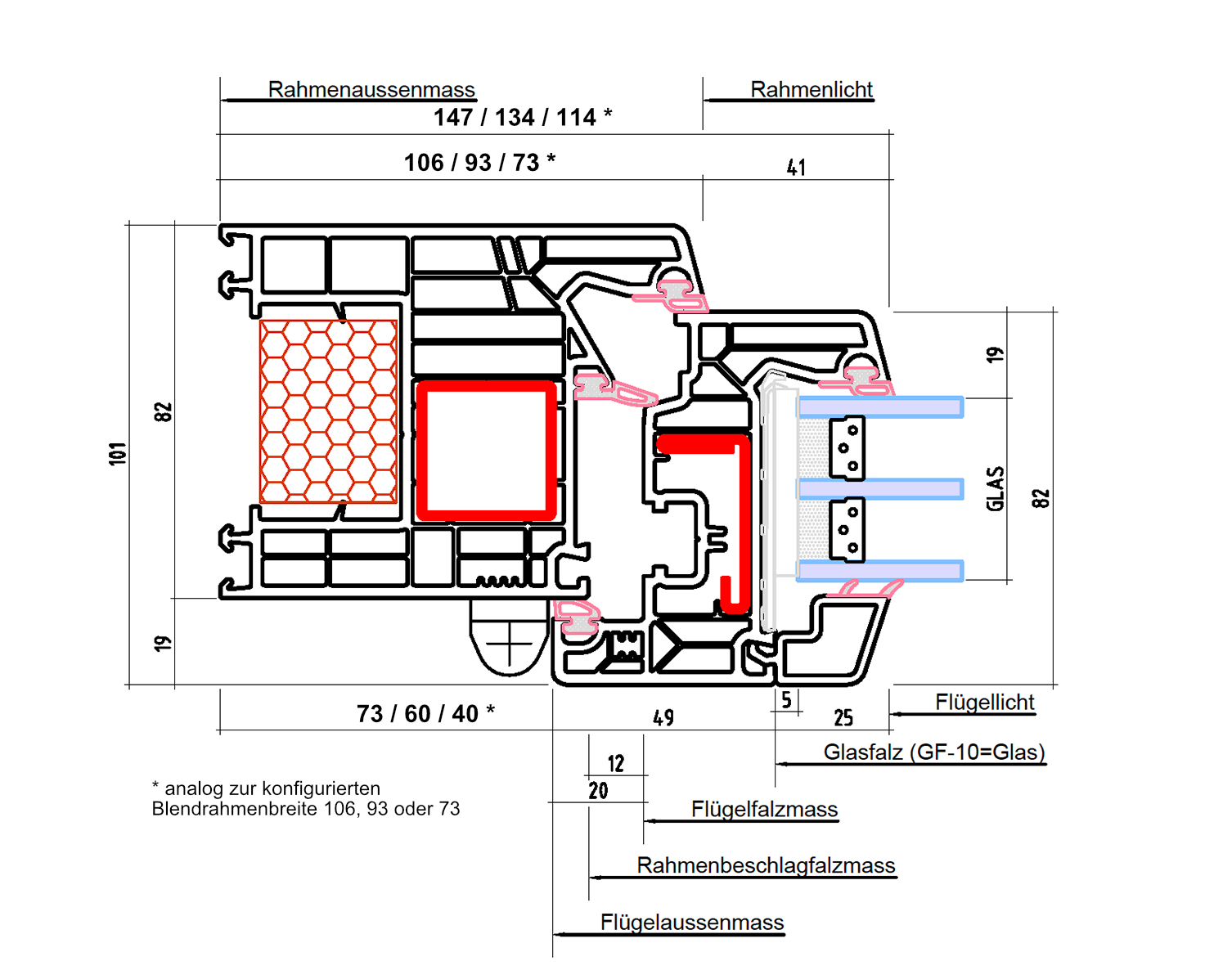
Profilschnitte

Unser Qualitätsfenster

Fenster-Profilschnitt seitlich und oben

Konstruktion und Aufbau eines Fensters aus der Seiten- und Draufsicht.

Fenster-Profilschnitt Mittelpartie (Pfosten)

Querschnitt durch den vertikalen Mittelteil eines Fensters bei mehrflügeligen Fenstern.

Fenster-Profilschnitt unten (Bankanschluss)

Querschnitt des unteren Teil eines Fensters mit Verbindung zur Fensterbank.

Festverglasung Profilschnitt unten

Querschnitt des unteren Teils einer festen Verglasung mit Verbindung des Glases zur Fensterbank.