Fenster einflügelig (800 x 1000 mm)
Eingabe ausserhalb des zulässigen Bereichs! Breite: 520-1200 mm und Höhe: 520-1800 mm
Teilung des Fensters nicht möglich! Aufteilung zwischen: 500-300 mm
Rahmenlichtmass: 588 x 788 mm
Rahmenaussenmass: 800 x 1000 mm
-
Öffnungsrichtung Dreh-Kipp rechts -
Sicherheit Grundsicherheit Grundsicherheit
Sicherheit
Paket 1
Sicherheit
Paket 2N
Sicherheit
Paket 2
Sicherheitspaket 1 : mit abschliessbarem Griff, mehr Schliesspunkte
Sicherheitspaket 2N: mit abschliessbarem Griff, maximale Schliesspunkte
Sicherheitspaket 2 : mit abschliessbarem Griff, maximale Schliesspunkte, VSG-Glas -
Glas Dreifach-Isolierglas Dreifach-Isolierglas
Dreifach-Isolierglas
VSG einseitig innen
Dreifach-Isolierglas
VSG einseitig aussen
Dreifach-Isolierglas
VSG beidseitig
Schallschutz
38 dB Dreifach-Isolierglas
Schallschutz
38 dB VSG beidseitig
Schallschutz
42 dB VSG beidseitig
Verbundsicherheitsglas (VSG) behält bei Beschädigung die zugedachte Schutzwirkung. Bricht Glas, haften die Bruchstücke an der unverletzten PVB-Schicht. Dadurch vermindert sich die Verletzungsgefahr und die Verglasung behält eine Reststabilität und Einbruchhemmung. -
Ornamentglas Klarglas -
Fenstergriff silber Standard -
Sprossen keine -
Wetterschenkel Silber (standard) -
Blendrahmenbreite 106 mm
-
Rahmenverbreiterung oben keine -
Rahmenverbreiterung unten keine -
Rahmenverbreiterung links keine -
Rahmenverbreiterung rechts keine
zzgl. 8.10% MwSt.
CHF385.65
Konfiguration nicht möglich
Warenkorb
Ihr Warenkorb ist leer.
Lieferzeit:
Achtung Betriebspause Standardbestellungen bis 5.11.25 werden noch dieses Jahr geliefert. Nutzen Sie Express!
Druckausgleich:
Erfolgt der Einbau der Fenster über 1200 m.ü.M. ?
m.ü.M.
Beschreibung
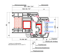
Einflügeliges Kunststofffenster mit den Massen 800 x 1000 mm und der Öffnungsrichtung Dreh-Kipp rechts. Das Fenster hat Innen und Aussen die Farbe weiss. Das Profil ist ein Softlineprofil der Marke VEKA mit 82 mm Bautiefe, 7 Profilkammern und 3 Dichtungen. Die Scheibe ist ein Dreifach-Isolierglas mit einem U-Wert von 0.6 W/m2K. Der Beschlag ist ein Drehkipp Beschlag von Siegenia mit Pilzkopfverriegelung.
Bewertungen
12.01.2026
In der Schweiz produziert.Top Qualität. Pünktlich geliefert. Besser geht nicht.
08.01.2026
04.01.2026
Balkontüre in beschriebener hochwertigen Qualität. Expresslieferung war sogar noch schneller als angekündigt. Leider war der falsche Griff dabei. Dies war aber mit einem Anruf sehr unkompliziert erledigt. Ich kaufe sehr gerne wieder bei Dein Fenster, Herzlichen Dank.
Technische Daten
| Ausführung: | Fenster einflügelig 800x1000 mm |
| Material: | Kunststoff |
| Aussenfarbe: | Weiss (ähnlich RAL 9016) |
| Innenfarbe: | Weiss (ähnlich RAL 9016) |
| Öffnungsrichtung: | Dreh-Kipp rechts |
| Breite Rahmenaussenmass: | 800 mm |
| Höhe Rahmenaussenmass: | 1000 mm |
| Bautiefe Rahmen: | 82 mm |
| Anzahl Profilkammern: | 7 |
| Anzahl Dichtungen: | 3 |
| Beschlag: | Grundsicherheit |
| Pilzkopfverriegelung: | Ja |
| Fenstergriff: | silber Standard |
| Wetterschenkel: | Ausladung 49 mm / Silber (standard) |
| Glas: | Dreifach-Isolierglas |
| Ornamentglas: | Klarglas |
| U-Wert Glas (Ug): | 0.6 W/m2K |
| Stahlarmierung: | umlaufend in Rahmen und Flügel |
| Rahmenverbreiterung oben: | keine |
| Rahmenverbreiterung unten: | keine |
| Gewicht pro Element: | 55.4 kg |
| Energieetikette: | Klasse A |
| Luftdurchlässigkeit nach EN 12207:1999: | Klasse 4 |
| Schlagregendichtheit nach EN 12208:1999: | Klasse 7A |